大树装饰官网!

装修服务咨询 :

18945101277

当前位置 : 网站首页 > 装修资讯 > 汇龙拾光里|60㎡现代风两居 刚需户型生活不将就!

汇龙拾光里|60㎡现代风两居 刚需户型生活不将就!

来源 :哈尔滨大树装饰

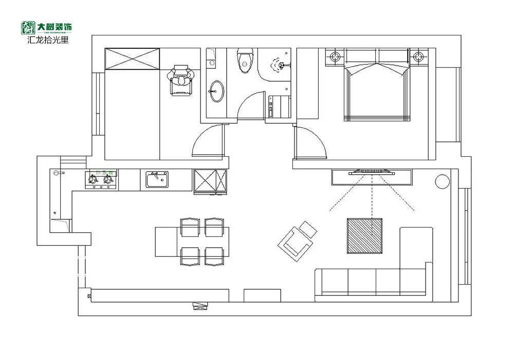
平面图

图片说在前面



“给你一个房间,温度正好,有手机,有Wi-Fi有食物,不用上班,你能待多久?以前一句玩笑话,如今竟然成了很多人认真考虑的居住指南。舒适的家里与真正的自己朝夕相处。这个节骨眼上,家里装修的舒服、实用,细节的设计显得尤为重要。



效果图


图片

图片图片

客厅


通过硬装改造,将原有的阳台纳入客厅,让原来略显逼仄的客厅更加宽敞大气。LDK一体式无主灯的设计让可整个客厅餐厅厨房连贯视觉上增大了空间。




图片图片
厨房区

图片
图片
餐区



摒弃传统餐桌,用吧台代替日常餐桌,偶尔朋友小聚开个party还能做个冷餐台。年轻夫妻总是有最新派的考虑。



图片图片

玄关


卧室的设计从视觉上传递出舒适、自然的感觉。对于色彩的控制比较克制,赋予空间亲和感。



图片


哈尔滨大树装饰装修效果图案例

免费

免费申请户型规划

专属设计师免费1对1全程服务

已经有1862人申请

24小时免费咨询电话

18945101277

哈尔滨装修公司 - 大树装饰 - 真爱家人 就选大树© Copyright 2015-2022 哈尔滨大树装饰工程设计有限公司 版权所有   网站地图   黑ICP备17003252号-1

1862

咨询热线:18945101277

*为了您的权益,您的隐私将被严格保密

×

你家预算

108080

装修服务咨询

18945101277

×

在线客服 报价 量房 风格测试 返回顶部